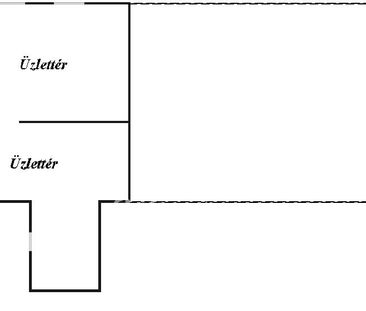
2 bérlemény található
Győr
KIADÓÓÓ, Csak Nálunk, Csak az OTTHON CENTRUMnál KIADÓ a ...
Győr-Moson-Sopron megye, Győr-nádorváros frekventált rész...
MÚLT ÉS JELEN TÖKÉLETES PÁROSÍTÁSA A BELVÁROSBAN! Győrbe...
Az Openhouse Center - Győr Ingatlaniroda kínálatában kiad...
Győr - Moson - Sopron vármegye, Győr - Adyváros, panel la...
Győr-Moson-Sopron vármegye, Győr egyik közkedvelt részén:...
KIADÓÓÓÓÓÓ a képeken látható Győr - Belváros szívében tal...
Győr-Szabadhegyen, az Iker utcában kiadó egy 38 m²-es, fö...
Győr Moson Sopron Megye
Győr Gyárvárosban kiadó egy azonnal költözhető 49 m2-es 2...
KIADÓ LAKÁS GYŐR RÉVFALUBAN – EGYETEMHEZ KÖZEL! Kiadó eg...
Győr-Belvárosban nappali + 1 szobás, újszerű, bútorozott ...
Győr-Révfalu csendes utcájában keresem új bérlőjét ennek ...
Kiadó Győr Nádorvárosban a Baross híd lábánál egy 61 m2-e...