Párisi Udvar Hotel Budapest, 1052

Párisi Udvar Hotel Budapest, 1052

  • Lakás
  • |
  • 124 m²
  • |
  • 3 Hálószoba
  • |
  • 19 napja

Utolsó keresés: 7 órája info

Napi nézetek ikon1 megtekintés az elmúlt 24 órában

Tegyen fel egy kérdést

Erről az ingatlanról

Regisztráljon, hogy láthassa az összes fényképet és részletet ezen a bérleti ingatlanon
Regisztráljon most

Üdvözöljük új városi menedékében a Párisi Udvar Hotel Budapest, 1052-n! Ez a modern 3 hálószobás lakás stílusos és kényelmes életteret kínál. Az open-concept elrendezés tökéletes a szórakoztatásra, a letisztult konyha pedig a legjobb minőségű készülékekkel van felszerelve. Kiváló elhelyezkedésének köszönhetően csupán néhány lépésre lesz a város legjobb éttermeitől, boltjaitól és szórakozóhelyeitől. Az Ft 990000 áron elérhető, ez a lakás fantasztikus lehetőség, hogy a városi életet a legjobbját élvezhesse. Ne hagyja ki – foglaljon időpontot a megtekintésre még ma!


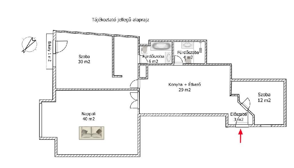
Ingatlan jellemzői
Ingatlan típusa
Méret
124 m²
Hálószobák
3
Emelet
2
Lift
Igen
Idősek számára barátságos
Nem
Erkély
Igen
Parkoló
Igen
Építés éve
1914

A bérlésről
Havi bérleti díj
Ft 990000
Közüzemi díjak
-
Kaució
-
Bérleti időszak
-
Elérhető dátum
-

Észrevett egy hibát a hirdetésben?
Segítsen nekünk, hogy a Rentumo jobb legyen - jelezze, ha bármilyen helytelen információt talál, és mi foglalkozunk vele.
Jelentse a problémát

GYIK

Korlátlan hozzáférést nyerhet a Rentumo összes keresési eredményének részleteihez Prémium tagsággal. Kattintson ide a Rentumo Prémiumra való regisztráláshoz.

Ön 1-5 bérleti weboldalt keres. Mi több mint 350-et keresünk Önnek. Naponta több mint 200 új otthont találunk az összes weboldalról. Minden órában értesítéseket kap az új találatokról. A Rentumo használatával naponta több mint 1 órát spórolhat a keresésen.

Iratkozzon fel egy Keresőügynökre, és kapjon értesítéseket, így Ön lesz az első, aki megtudja, amikor új otthonok válnak elérhetővé a piacon. Kattintson ide a DÍJMENTES regisztrációhoz.

Ez a hirdetés egy másik weboldalon található, mivel több 0 weboldalt átnézünk Magyarország területén, hogy az összes hirdetést egy kényelmes keresésbe összevonhassuk Önnek. Más szóval, mi végezzük el a keresést Ön helyett.

Mindig ragaszkodjon ahhoz, hogy személyesen találkozzon a bérbeadókkal, mielőtt bármilyen letétet fizetne. Ha egy bérbeadó letétet kér, mielőtt Ön látta volna az ingatlant, azt piros zászlónak tekintse. Győződjön meg róla, hogy lefoglal egy megtekintést, személyesen találkozik, és aláírt szerződést kap, mielőtt bármilyen kifizetést végezne.

Ha a bérlemény már nem elérhető, rossz cím szerepel rajta, vagy úgy tűnik, hogy helytelen, kérjük, jelezze itt.

Naponta átvizsgáljuk a 22 bérleti weboldalakat, és minden nap több száz új hirdetést találunk, hogy gyors értesítéseket küldhessünk Önnek.

Ha probléma merül fel, gyorsan átnézzük — és jogosult lehet a visszatérítésre.

Itt jelezze a hibát.

Helyszín Minden lakások kiadó Budapest-ben

Még nem talált új otthont?

  • Hozzon létre egy ingyenes Kereső Ügynököt
  • +100 új otthon naponta
  • A 10 emberből 7, aki új otthont talált, feliratkozott a SearchAgent szolgáltatásunkra.
  • Keresési kritériumai

Budapest
Ft 1010000/hónap, min. 3 hálószoba

Havi bérleti díj
990 000 Ft
Kapcsolat
Logo Close
Főoldal ikon